-


更新日:2025.11.29
長野市川中島町御厨***
3,980万円
76.95坪 4LDK
-

更新日:2025.12.08
長野市川中島町上氷鉋
1,200万円
40.41坪 4LDK
-

更新日:2025.12.08
長野市川中島町原
3,880万円
51.76坪 4LDK
中古戸建て 長野市川中島町今里 5LDK 3,998万円
この物件は426人の方が見ています
物件おすすめポイント
☆川中島中学校まで徒歩9分(680m)で通学に安心☆コープながの長野稲里店まで徒歩9分(710m)
ライフインフォメーション
物件一覧へ戻る
| 所在地 | 価格 | 交通 |
|---|---|---|
| 長野市川中島町今里 | 3,998万円 | JR篠ノ井線 川中島駅 まで 徒歩27分、(川中島駅:2140m)車 6分、「三俣バス停(アルピコ)」まで徒歩1分(80m) |

物件概要
中古戸建て(15204
| 所在地 | 長野市川中島町今里 | 交通 | JR篠ノ井線 川中島駅 まで 徒歩27分、(川中島駅:2140m)車 6分、「三俣バス停(アルピコ)」まで徒歩1分(80m) |
|---|---|---|---|
| 敷地面積 | 482.85㎡(146.06坪) | 建物面積 | 174.93㎡ (52.91坪) |
| 価格 | 3,998万円 | 築年月 | 2002年(平成14)3月 |
| 建ぺい率 |
60% | 容積率 |
200% |
| 土地権利 |
所有権 | 地目 |
宅地 |
| 小学校区 | 川中島小学校(1110 m) | 中学校区 | 川中島中学校(680 m) |
| 私道負担 | 現況 | 空家 | |
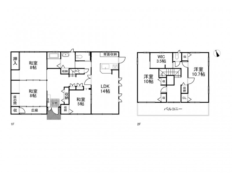
| 引渡し時期 | 相談 | 間取り | 5LDK |
| 建築構造 | 木造 瓦葺 | 上水道 | 公共 |
| 下水道 | 公共 | ガス | 個別 |
| 駐車場台数 | 普通4台 | 用途地域 |
第二種中高層住居専用地域 |
| 都市計画 |
市街化区域 | ||
| 設備 | トイレ2箇所、追焚機能、温水洗浄便座、ウォークインクローゼット、全居室収納あり、小屋裏収納、浴室1坪以上、キッチン引き出し収納、ハウスメーカー施工、駐車場2台以上 | ||
| 備考 | 【令和7年11月中旬リフォーム完成予定】●外壁塗装●玄関扉新品●駐車場拡張工事●システムキッチン新品●ユニットバス新品●クロス全面張替●フローリング増張●室内建具新品(一部)●エアコン新設●洗面化粧台新品●各種点検等 | ||
| 取引態様 | 仲介 | ||
をクリックすると用語集がご覧いただけます。
弊社では、売主様に配慮し、物件所在地を掲載していない物件がございます。詳細については、お気軽にお問合せください。
15204 (物件番号: 15204)
【更新年月日】2025年11月30日
【次回更新日】2025年12月30日
物件周辺の地図
大きな地図で見る
近隣物件
物件一覧へ戻る







