-


更新日:2025.12.06
塩尻市広丘堅石
2,980万円
69.86坪 3LDK
-


更新日:2025.12.06
塩尻市広丘堅石
3,130万円
68.84坪 4LDK
-
商談中
更新日:2025.12.05
塩尻市広丘堅石
3,180万円
60.25坪 4LDK
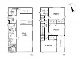
新築戸建て 塩尻市広丘堅石 4LDK 2,980万円
この物件は27人の方が見ています
物件おすすめポイント
☆和室つきの4LDK新築戸建て☆会話の弾む対面キッチン♪☆全居室収納つき!
ライフインフォメーション
物件一覧へ戻る
| 所在地 | 価格 | 交通 |
|---|---|---|
| 塩尻市広丘堅石6号棟 | 2,980万円 | JR篠ノ井線 塩尻駅 まで 徒歩29分、(2300m)、「市営球場口(すてっぷくん)」まで徒歩5分(400m) |

物件概要
新築戸建て(15264
| 所在地 | 塩尻市広丘堅石 6号棟 | 交通 | JR篠ノ井線 塩尻駅 まで 徒歩29分、(2300m)、「市営球場口(すてっぷくん)」まで徒歩5分(400m) |
|---|---|---|---|
| 敷地面積 | 180.57㎡(54.62坪) | 建物面積 | 93.96㎡ (28.42坪) |
| 価格 | 2,980万円 | 築年月 | 2026年(令和8)3月 完成予定 |
| 建ぺい率 |
60% | 容積率 |
200% |
| 土地権利 |
所有権 | 地目 |
宅地 |
| 小学校区 | 広丘小学校(1200 m) | 中学校区 | 広陵中学校(1300 m) |
| 私道負担 | 現況 | 建築中 | |
| 引渡し時期 | 予定 2026年3月 下旬 | 間取り | 4LDK |
| 建築構造 | 木造 | 上水道 | 公共 |
| 下水道 | 公共 | ガス | 個別 |
| 駐車場台数 | 普通2台 | 用途地域 |
工業地域 |
| 都市計画 |
市街化区域 | ||
| 設備 | 電気、水道、プロパンガス、風呂、トイレ、給湯、シャワー、照明、シャンプードレッサー、バス・トイレ別、室内洗濯機置場、追焚機能、温水洗浄便座、システムキッチン、IHクッキングヒーター、ウォークインクローゼット、駐車場2台 | ||
| 備考 |
※土地面積に路地状部分約27㎡を含む ※建物面積に別途ルーフバルコニー約6.48㎡有り |
||
| 取引態様 | 仲介 | ||
| 建築確認番号 | 第R07SHC115226号 | ||
をクリックすると用語集がご覧いただけます。
弊社では、売主様に配慮し、物件所在地を掲載していない物件がございます。詳細については、お気軽にお問合せください。
15264 (物件番号: 15264)
【更新年月日】2025年12月06日
【次回更新日】2026年01月06日
物件周辺の地図
大きな地図で見る
近隣物件
物件一覧へ戻る







