-


更新日:2025.11.08
安曇野市三郷温
3,240万円
68.46坪 2LDK
-


更新日:2025.10.31
安曇野市三郷温
1,899万円
75.02坪 3LDK
-
商談中

更新日:2025.11.08
安曇野市三郷明盛
2,449万円
68.54坪 4LDK
新築戸建て 安曇野市三郷温 3LDK 3,340万円
この物件は85人の方が見ています
物件おすすめポイント
☆田園風景に囲まれた立地☆ザ・ビッグ三郷店まで徒歩13分(1040m)
ライフインフォメーション
物件一覧へ戻る
| 所在地 | 価格 | 交通 |
|---|---|---|
| 安曇野市三郷温A3 | 3,340万円 | JR大糸線 一日市場駅 まで 徒歩20分、(一日市場駅:1600m)車 4分、「ショッピングセンターエルサあずみ野バス停(あづみん)」まで徒歩14分(1050m) |

物件概要
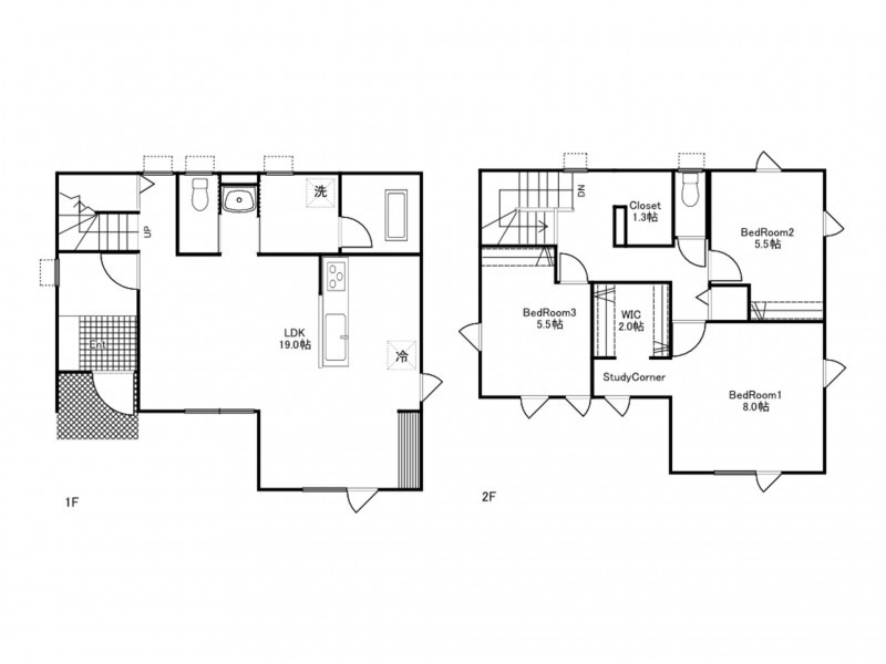
新築戸建て(15186
| 所在地 | 安曇野市三郷温 A3 | 交通 | JR大糸線 一日市場駅 まで 徒歩20分、(一日市場駅:1600m)車 4分、「ショッピングセンターエルサあずみ野バス停(あづみん)」まで徒歩14分(1050m) |
|---|---|---|---|
| 敷地面積 | 公簿 262.63㎡(79.44坪) | 建物面積 | 101.02㎡ (30.55坪) |
| 価格 | 3,340万円 | 築年月 | 2025年(令和7)11月 完成予定 |
| 建ぺい率 |
60% | 容積率 |
120% |
| 土地権利 |
所有権 | 地目 |
宅地 |
| 小学校区 | 三郷小学校(1280 m) | 中学校区 | 三郷中学校(1420 m) |
| 私道負担 | なし | 現況 | 建築中 |
| 引渡し時期 | 予定 2026年1月 | 間取り | 3LDK |
| 建築構造 | 木造 | 上水道 | 公共 |
| 下水道 | 公共 | ガス | |
| 駐車場台数 | 普通3台 | 用途地域 |
第一種低層住居専用地域 |
| 都市計画 |
未線引き | ||
| 設備 | 電気、給湯、照明、バス・トイレ別、エアコン、トイレ2箇所、追焚機能、浴室乾燥機、温水洗浄便座、システムキッチン、IHクッキングヒーター、食器洗浄乾燥機、ウォークインクローゼット、オール電化、カウンターキッチン・浄水器・TVモニタ付きインターホン・ディンプルキー・火災警報器(報知機)・暖房便座・オートバス・バス1坪以上・24時間換気システム・設計住宅性能評価書・洗髪洗面化粧台・複層ガラス | ||
| 備考 |
建築確認申請番号 ERI-25018003 太陽光5.46KW搭載 施工会社 株式会社アルプスピアホーム |
||
| 取引態様 | 仲介 | ||
をクリックすると用語集がご覧いただけます。
弊社では、売主様に配慮し、物件所在地を掲載していない物件がございます。詳細については、お気軽にお問合せください。
15186 (物件番号: 15186)
【更新年月日】2025年11月06日
【次回更新日】2025年12月06日
物件周辺の地図
大きな地図で見る
近隣物件
物件一覧へ戻る







