-


更新日:2025.12.15
塩尻市大門八番町
3,280万円
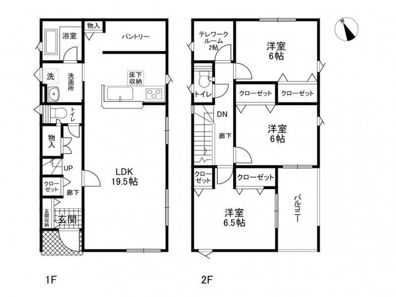
58.22坪 3LDK+テレワークルーム
-


更新日:2025.12.15
塩尻市大門八番町
3,230万円
64.46坪 4LDK
-


更新日:2025.12.15
塩尻市大門字草刈道
3,380万円
63.85坪 2LDK
新築戸建て 塩尻市大門八番町 3LDK+テレワークルーム 3,180万円
この物件は590人の方が見ています
物件おすすめポイント
☆最寄り駅まで徒歩圏内で利便性良好!☆塩尻西小学校まで徒歩10分(750m)で通学に安心
ライフインフォメーション
物件一覧へ戻る
| 所在地 | 価格 | 交通 |
|---|---|---|
| 塩尻市大門八番町4号棟 | 3,180万円 | JR篠ノ井線 塩尻駅 まで 徒歩7分、(塩尻駅:510m)車 2分、「塩尻四つ角バス停(すてっぷくん)」まで徒歩2分(110m) |

物件概要
新築戸建て(15190
| 所在地 | 塩尻市大門八番町 4号棟 | 交通 | JR篠ノ井線 塩尻駅 まで 徒歩7分、(塩尻駅:510m)車 2分、「塩尻四つ角バス停(すてっぷくん)」まで徒歩2分(110m) |
|---|---|---|---|
| 敷地面積 | 208.67㎡(63.12坪) | 建物面積 | 98.82㎡ (29.89坪) |
| 価格 | 3,180万円 | 築年月 | 2025年(令和7)12月 完成予定 |
| 建ぺい率 |
80% | 容積率 |
240% |
| 土地権利 |
所有権 | 地目 |
宅地 |
| 小学校区 | 塩尻西小学校(750 m) | 中学校区 | 塩尻中学校(2000 m) |
| 私道負担 | 現況 | 建築中 | |
| 引渡し時期 | 予定 2025年12月 下旬 | 間取り | 3LDK+テレワークルーム |
| 建築構造 | 木造 | 上水道 | 公共 |
| 下水道 | 公共 | ガス | 個別 |
| 駐車場台数 | 普通3台 | 用途地域 |
商業地域 |
| 都市計画 |
市街化区域 | ||
| 設備 | 給湯、シャンプードレッサー、トイレ2箇所、浴室乾燥機、温水洗浄便座、システムキッチン、3口以上コンロ、浴室暖房、対面式キッチン、カウンターキッチン、浄水器、モニター付きインターホン、防犯カメラ、人感センサーライト、ディンプルキー、複層ガラス、各室収納スペース、床下収納、24時間換気システム、火災警報器(報知器) | ||
| 備考 |
【建築確認番号】第R07SHC116093号 令和7年9月11日 容積率:前面道路幅員制限 土地面積に協定通路部分(路地状部分)約58.63平米を含む 建物面積に別途ルーフバルコニー約6.48平米有り 敷地内に電柱有り |
||
| 取引態様 | 仲介 | ||
をクリックすると用語集がご覧いただけます。
弊社では、売主様に配慮し、物件所在地を掲載していない物件がございます。詳細については、お気軽にお問合せください。
15190 (物件番号: 15190)
【更新年月日】2025年12月15日
【次回更新日】2026年01月15日
物件周辺の地図
大きな地図で見る
近隣物件
物件一覧へ戻る







