-

更新日:2025.10.31
長野市篠ノ井布施五明
3,780万円
46.01坪 4LDK
-

更新日:2025.10.31
長野市篠ノ井布施五明
3,480万円
41.85坪 4LDK
-

更新日:2025.11.06
長野市篠ノ井布施高田
2,480万円
112.76坪 3LDK
中古戸建て 長野市篠ノ井岡田 5SLDK 2,298万円
この物件は4人の方が見ています
物件おすすめポイント
☆A・コープファーマーズ篠ノ井店まで車5分(1850m)☆広い駐車スペースと広いお庭
ライフインフォメーション
物件一覧へ戻る
| 所在地 | 価格 | 交通 |
|---|---|---|
| 長野市篠ノ井岡田 | 2,298万円 | JR篠ノ井線 今井駅 まで 徒歩22分、(今井駅:1690m)車 5分、「中町バス停(乗合)」まで徒歩2分(150m) |

物件概要
中古戸建て(15191
| 所在地 | 長野市篠ノ井岡田 | 交通 | JR篠ノ井線 今井駅 まで 徒歩22分、(今井駅:1690m)車 5分、「中町バス停(乗合)」まで徒歩2分(150m) |
|---|---|---|---|
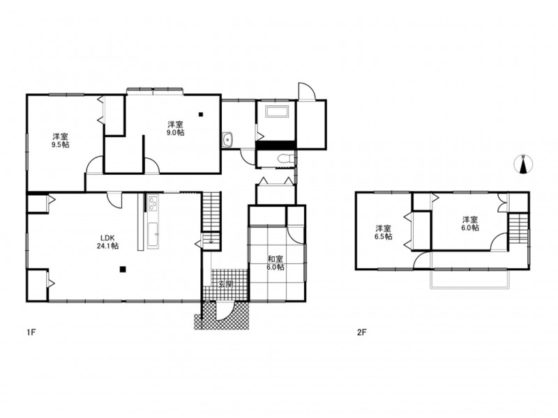
| 敷地面積 | 707.43㎡(213.99坪) | 建物面積 | 153.90㎡ (46.55坪) |
| 価格 | 2,298万円 | 築年月 | 1977年(昭和52)5月 |
| 建ぺい率 |
60% | 容積率 |
200% |
| 土地権利 |
所有権 | 地目 |
宅地 |
| 小学校区 | 共和小学校(1590 m) | 中学校区 | 篠ノ井西中学校(1700 m) |
| 私道負担 | なし | 現況 | 空家 |
| 引渡し時期 | 相談 | 間取り | 5SLDK |
| 建築構造 | 木造 | 上水道 | 公共 |
| 下水道 | 公共 | ガス | 個別 |
| 駐車場台数 | 普通3台 | 用途地域 |
無指定 |
| 都市計画 |
市街化調整区域 | ||
| 設備 | 電気、追焚機能、温水洗浄便座、システムキッチン、オートバス、シャワー付洗面化粧台、カウンターキッチン、3口以上コンロ、全居室収納、クローゼット、モニター付インターホン | ||
| 備考 |
【2025年9月リフォーム完了済み】キッチン、浴室、トイレ、洗面所、壁・天井(クロス・塗装等)、建具(室内ドア等)、外壁、屋根、玄関ドア交換、TVモニターホン新品、照明器具新品・ハウスクリーニング・白アリ防蟻工事 など ※本物件は原則再建築は不可ですが、都市計画法施行規則第60条に基づく証明書の交付を受けることにより再建築が可能です。証明書の交付には別途費用が必要です。 |
||
| 取引態様 | 仲介 | ||
をクリックすると用語集がご覧いただけます。
弊社では、売主様に配慮し、物件所在地を掲載していない物件がございます。詳細については、お気軽にお問合せください。
15191 (物件番号: 15191)
【更新年月日】2025年11月06日
【次回更新日】2025年12月06日
物件周辺の地図
大きな地図で見る
近隣物件
物件一覧へ戻る







