-
商談中
更新日:2026.02.16
長野市稲里町中央1丁目
3,080万円
43.51坪 4LDK
-


更新日:2026.02.06
長野市稲里町中央1丁目
2,880万円
60.53坪 4LDK
-
商談中
更新日:2026.02.17
長野市稲里町中央1丁目
3,080万円
44.14坪 4SLDK
新築戸建て 長野市稲里町中央1丁目 4SLDK 2,880万円
商談中
この物件は412人の方が見ています
物件おすすめポイント
☆下氷鉋小学校まで徒歩8分で通学に安心☆ツルヤ長野南店まで徒歩6分(450m)でお買い物に便利♪
ライフインフォメーション
物件一覧へ戻る
| 所在地 | 価格 | 交通 |
|---|---|---|
| 長野市稲里町中央1丁目3号棟 | 2,880万円 | JR篠ノ井線 川中島駅 まで 徒歩33分、(川中島駅:2600m)車 7分、「野池バス停(アルピコ)」まで徒歩4分(280m) |

物件概要
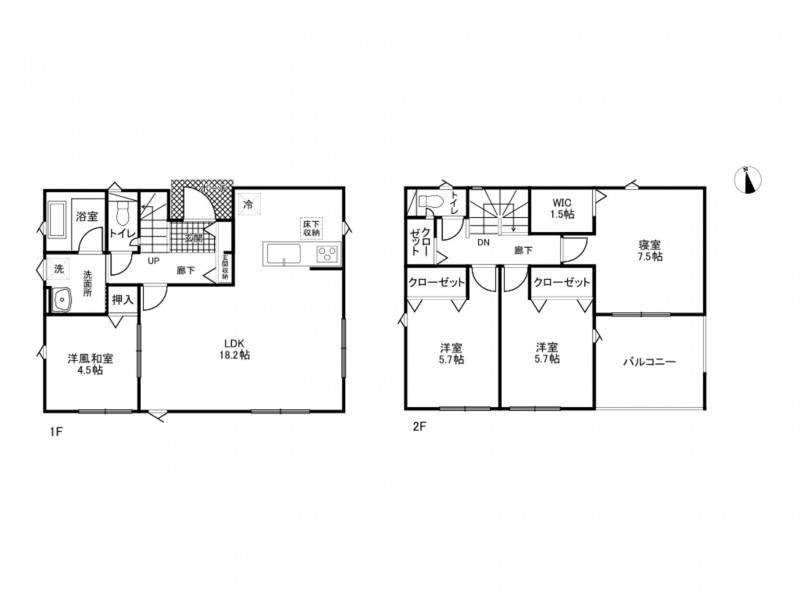
新築戸建て(15396
| 所在地 | 長野市稲里町中央 1丁目 3号棟 | 交通 | JR篠ノ井線 川中島駅 まで 徒歩33分、(川中島駅:2600m)車 7分、「野池バス停(アルピコ)」まで徒歩4分(280m) |
|---|---|---|---|
| 敷地面積 | 196.89㎡(59.55坪) | 建物面積 | 97.59㎡ (29.52坪) |
| 価格 | 2,880万円 | 築年月 | 2025年(令和7)12月 |
| 建ぺい率 |
60% | 容積率 |
160% |
| 土地権利 |
所有権 | 地目 |
宅地 |
| 小学校区 | 下氷鉋小学校(600 m) | 中学校区 | 広徳中学校(1830 m) |
| 私道負担 | 現況 | 空家 | |
| 引渡し時期 | 予定 2025年12月 下旬 | 間取り | 4SLDK |
| 建築構造 | 木造 | 上水道 | 公共 |
| 下水道 | 公共 | ガス | 個別 |
| 駐車場台数 | 普通2台 | 用途地域 |
第二種中高層住居専用地域 |
| 都市計画 |
市街化区域 | ||
| 設備 | トイレ2箇所、浴室乾燥機、温水洗浄便座、システムキッチン、カウンターキッチン、浴室1坪以上、床下収納 、TVモニタ付インターホン | ||
| 備考 |
※【建築確認番号】第R07SHC117459号 ※道路後退部分1.86㎡有 |
||
| 取引態様 | 仲介 | ||
をクリックすると用語集がご覧いただけます。
弊社では、売主様に配慮し、物件所在地を掲載していない物件がございます。詳細については、お気軽にお問合せください。
15396 (物件番号: 15396)
【更新年月日】2026年02月16日
【次回更新日】2026年03月16日
物件周辺の地図
大きな地図で見る
近隣物件
物件一覧へ戻る







