-


更新日:2026.02.17
長野市三才字将軍塚
2,180万円
51.13坪 4LDK
-


更新日:2026.02.17
長野市三才字将軍塚
2,380万円
39.12坪 4LDK
-


更新日:2026.02.06
長野市上駒沢
2,098万円
50.13坪 4LDK
新築戸建て 長野市三才字将軍塚 4LDK 2,180万円
この物件は6人の方が見ています
物件おすすめポイント
☆三才駅まで徒歩12分で利便性良好☆西友古里店まで車で3分(1020m)とお買い物に便利♪
ライフインフォメーション
物件一覧へ戻る
| 所在地 | 価格 | 交通 |
|---|---|---|
| 長野市三才字将軍塚3号棟 | 2,180万円 | 北しなの線 三才駅 まで 徒歩12分、(三才駅:910m)車 3分、「三才東バス停(長電)」まで徒歩7分(520m) |

物件概要
新築戸建て(15439
| 所在地 | 長野市三才 字将軍塚 3号棟 | 交通 | 北しなの線 三才駅 まで 徒歩12分、(三才駅:910m)車 3分、「三才東バス停(長電)」まで徒歩7分(520m) |
|---|---|---|---|
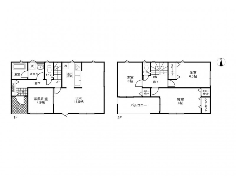
| 敷地面積 | 180.07㎡(54.47坪) | 建物面積 | 95.58㎡ (28.91坪) |
| 価格 | 2,180万円 | 築年月 | 2026年(令和8)2月 完成予定 |
| 建ぺい率 |
50% | 容積率 |
80% |
| 土地権利 |
所有権 | 地目 |
宅地 |
| 小学校区 | 古里小学校(1620 m) | 中学校区 | 東北中学校(1750 m) |
| 私道負担 | 現況 | ||
| 引渡し時期 | 予定 2026年2月 下旬 | 間取り | 4LDK |
| 建築構造 | 木造 | 上水道 | 公共 |
| 下水道 | 公共 | ガス | 個別 |
| 駐車場台数 | 普通2台 | 用途地域 |
第一種低層住居専用地域 |
| 都市計画 |
市街化区域 | ||
| 設備 | |||
| 備考 |
【建築確認番号】第R07SHC121310号 ※バルコニー面積 8.10㎡ |
||
| 取引態様 | 仲介 | ||
をクリックすると用語集がご覧いただけます。
弊社では、売主様に配慮し、物件所在地を掲載していない物件がございます。詳細については、お気軽にお問合せください。
15439 (物件番号: 15439)
【更新年月日】2026年02月17日
【次回更新日】2026年03月17日
物件周辺の地図
大きな地図で見る
近隣物件
物件一覧へ戻る







