-


更新日:2026.02.26
松本市大村
2,550万円
58.46坪 4SLDK
-

更新日:2026.03.09
松本市横田4丁目
2,698万円
53.10坪 4LDK+書斎(4.5 帖)+WIC(2.0 帖)+インナーガレージ(9.0 帖)
-

更新日:2026.03.09
松本市里山辺
3,598万円
172.15坪 5SLDK
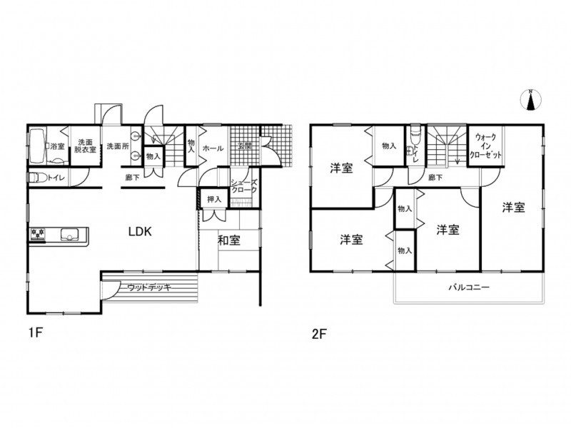
中古戸建て 松本市里山辺 5SLDK 2,590万円
物件おすすめポイント
★区画整理地内の「5SLDK」の間取りの中古戸建!
☆約20帖のゆとりある広さのLDK!
家族団らんの時間をゆったり過ごせる空間となっています♪
☆「ダブルボウル洗面」と「トイレ2箇所」で忙しい朝も安心です!
☆各居室に収納があり、更に大型シューズクロークやWICと収納豊富♪
☆キッチン・浴室に浄水器付きなど、こだわりの設備!
☆リビング南側には約3畳の広さのウッドデッキ付きです!
ライフインフォメーション
■LOCATION
●セブンイレブン松本里山辺店まで 徒歩9分(700m)
●松本市南郷保育園まで 徒歩10分(750m)
●里山辺郵便局まで 徒歩10分(750m)
●八十二長野銀行惣社支店まで 徒歩12分(900m)
●デリシア惣社店まで 徒歩12分(950m)
●松本市立本郷南幼稚園まで 徒歩14分(1100m)
●マツモトキヨシそうざ店まで 徒歩18分(1400m)
●信州大学医学部附属病院まで 車で5分(2000m)
●イオンモール松本まで 車で6分(2400m)
物件一覧へ戻る
| 所在地 | 価格 | 交通 |
|---|---|---|
| 松本市里山辺 | 2,590万円 | JR篠ノ井線 松本駅 まで 徒歩48分、(松本駅:3800m)車で 10分、「惣社北バス停(地域バス)」まで徒歩6分(430m) |

物件概要
中古戸建て(15447
| 所在地 | 松本市里山辺 | 交通 | JR篠ノ井線 松本駅 まで 徒歩48分、(松本駅:3800m)車で 10分、「惣社北バス停(地域バス)」まで徒歩6分(430m) |
|---|---|---|---|
| 敷地面積 | 公簿 197.50㎡(59.74坪) | 建物面積 | 133.32㎡ (40.32坪) |
| 価格 | 2,590万円 | 築年月 | 2005年(平成17)2月 |
| 建ぺい率 |
60% | 容積率 |
200% |
| 土地権利 |
所有権 | 地目 |
宅地 |
| 小学校区 | 山辺小学校(2900 m) | 中学校区 | 山辺中学校(1000 m) |
| 私道負担 | なし | 現況 | 居住中 |
| 引渡し時期 | 予定 2026年6月下旬 | 間取り | 5SLDK |
| 建築構造 | 木造 亜鉛メッキ鋼板葺 | 上水道 | 公共 |
| 下水道 | 公共 | ガス | 個別 |
| 駐車場台数 | 普通3台 | 用途地域 |
第一種中高層住居専用地域 |
| 都市計画 |
市街化区域 | ||
| 設備 | 電気、水道、プロパンガス、風呂、トイレ、給湯、バス・トイレ別、エアコン、室内洗濯機置場、フローリング、トイレ2箇所、温水洗浄便座、食器洗浄乾燥機、ウォークインクローゼット、ウッドデッキ、駐車場3台以上 | ||
| 備考 |
※荷物撤去後の現況渡し ※現在居住中のため、ご見学をご希望の際は事前にご予約をお願いいたします。 ※お住み替えのため、引き渡し時期はご契約から3~4か月後が目安となります。 下惣地区 地区計画区域内 |
||
| 取引態様 | 仲介 | ||
をクリックすると用語集がご覧いただけます。
弊社では、売主様に配慮し、物件所在地を掲載していない物件がございます。詳細については、お気軽にお問合せください。
15447 (物件番号: 15447)
【更新年月日】2026年03月09日
【次回更新日】2026年04月09日
物件周辺の地図
大きな地図で見る
近隣物件
物件一覧へ戻る







