-


更新日:2026.04.18
塩尻市広丘高出字和手
2,680万円
47.29坪 3LDK
-


更新日:2026.04.21
塩尻市広丘高出***
2,890万円
35.37坪 3LDK
-

更新日:2026.04.20
塩尻市広丘堅石
3,590万円
53.40坪 3LDK
新築戸建て 塩尻市広丘高出字和手 3LDK 2,780万円
この物件は511人の方が見ています
物件おすすめポイント
☆桔梗小学校まで徒歩9分で通学に安心☆デリシア塩尻東店まで徒歩8分(600m)とお買い物に便利♪
ライフインフォメーション
物件一覧へ戻る
| 所在地 | 価格 | 交通 |
|---|---|---|
| 塩尻市広丘高出字和手1号棟 | 2,780万円 | JR篠ノ井線 塩尻駅 まで 徒歩23分、(塩尻駅:1780m)車 5分、「佐々木整骨院バス停(のるーと)」まで徒歩3分(220m) |

物件概要
新築戸建て(15461
| 所在地 | 塩尻市広丘高出 字和手 1号棟 | 交通 | JR篠ノ井線 塩尻駅 まで 徒歩23分、(塩尻駅:1780m)車 5分、「佐々木整骨院バス停(のるーと)」まで徒歩3分(220m) |
|---|---|---|---|
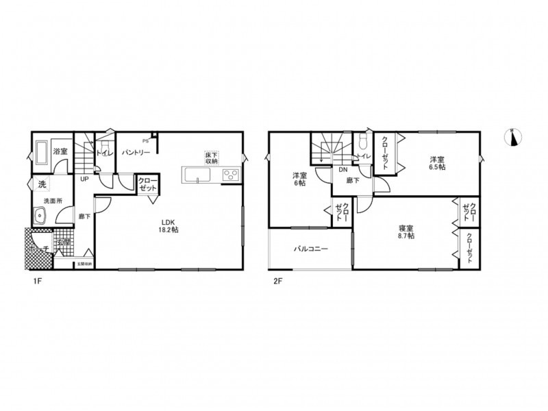
| 敷地面積 | 125.07㎡(37.83坪) | 建物面積 | 97.20㎡ (29.40坪) |
| 価格 | 2,780万円 | 築年月 | 2026年(令和8)5月 完成予定 |
| 建ぺい率 |
60% | 容積率 |
160% |
| 土地権利 |
所有権 | 地目 |
宅地 |
| 小学校区 | 桔梗小学校(660 m) | 中学校区 | 広陵中学校(2480 m) |
| 私道負担 | 現況 | ||
| 引渡し時期 | 予定 2026年6月 上旬 | 間取り | 3LDK |
| 建築構造 | 木造 | 上水道 | 公共 |
| 下水道 | 公共 | ガス | 個別 |
| 駐車場台数 | 普通2台 | 用途地域 |
第一種中高層住居専用地域 |
| 都市計画 |
市街化区域 | ||
| 設備 | |||
| 備考 |
※容積率:前面道路幅員制限 ※建物面積に別途ルーフバルコニー約6.48平米有り ※土地面積に協定通路部分約0.5平米を含む |
||
| 取引態様 | 仲介 | ||
をクリックすると用語集がご覧いただけます。
弊社では、売主様に配慮し、物件所在地を掲載していない物件がございます。詳細については、お気軽にお問合せください。
15461 (物件番号: 15461)
【更新年月日】2026年04月18日
【次回更新日】2026年05月18日
物件周辺の地図
大きな地図で見る
近隣物件
物件一覧へ戻る







