-


更新日:2026.04.17
松本市島内字屋敷添
2,680万円
60.50坪 4LDK
-


更新日:2026.04.13
松本市美須々
3,849万円
48.99坪 4SLDK
-


更新日:2026.04.17
松本市岡田松岡
3,590万円
59.18坪 3LDK
新築戸建て 松本市島内字小屋裏 4LDK 3,580万円
この物件は466人の方が見ています
物件おすすめポイント
☆島内駅まで徒歩16分と利便性良好☆島内小学校まで徒歩14分で通学に安心☆閑静な住宅街☆西友島内店まで車で5分(1980m)とお買い物に便利♪
ライフインフォメーション
物件一覧へ戻る
| 所在地 | 価格 | 交通 |
|---|---|---|
| 松本市島内字小屋裏2号棟 | 3,580万円 | JR大糸線 島内駅 まで 徒歩16分、(島内駅:1240m)車 4分、「武宮前バス停(ぐるっと)」まで徒歩9分(710m) |

物件概要
新築戸建て(15503
| 所在地 | 松本市島内 字小屋裏 2号棟 | 交通 | JR大糸線 島内駅 まで 徒歩16分、(島内駅:1240m)車 4分、「武宮前バス停(ぐるっと)」まで徒歩9分(710m) |
|---|---|---|---|
| 敷地面積 | 233.84㎡(70.73坪) | 建物面積 | 110.12㎡ (33.31坪) |
| 価格 | 3,580万円 | 築年月 | 2026年(令和8)4月 完成予定 |
| 建ぺい率 |
60% | 容積率 |
200% |
| 土地権利 |
所有権 | 地目 |
宅地 |
| 小学校区 | 島内小学校(1070 m) | 中学校区 | 松島中学校(2120 m) |
| 私道負担 | なし | 現況 | 建築中 |
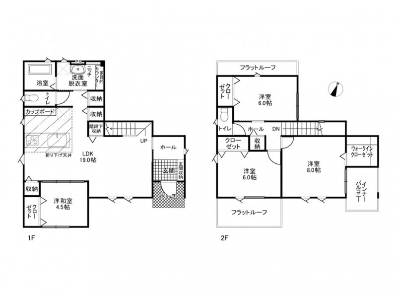
| 引渡し時期 | 相談 | 間取り | 4LDK |
| 建築構造 | 木造 | 上水道 | 公共 |
| 下水道 | 公共 | ガス | 個別 |
| 駐車場台数 | 普通3台 | 用途地域 |
無指定 |
| 都市計画 |
|||
| 設備 | 電気 | ||
| 備考 | 【建築確認番号】第25NJM-10-01223号 | ||
| 取引態様 | 仲介 | ||
をクリックすると用語集がご覧いただけます。
弊社では、売主様に配慮し、物件所在地を掲載していない物件がございます。詳細については、お気軽にお問合せください。
15503 (物件番号: 15503)
【更新年月日】2026年04月17日
【次回更新日】2026年05月17日
物件周辺の地図
大きな地図で見る
近隣物件
物件一覧へ戻る







