-


更新日:2026.04.09
長野市安茂里***
2,790万円
74.41坪 4SLDK
-

更新日:2026.04.17
長野市平柴台
1,600万円
70.89坪 3DK
-


更新日:2026.04.13
長野市稲里1丁目
3,380万円
47.30坪 4LDK+テレワークルーム
新築戸建て 長野市差出南2丁目 4LDK 3,180万円
この物件は218人の方が見ています
物件おすすめポイント
☆裾花小学校まで徒歩8分、裾花中学校まで徒歩2分で通学に安心☆西友伊勢宮店まで車で3分(1060m)とお買い物に便利♪
ライフインフォメーション
物件一覧へ戻る
| 所在地 | 価格 | 交通 |
|---|---|---|
| 長野市差出南2丁目1号棟 | 3,180万円 | JR信越本線 安茂里駅 まで 徒歩18分、(安茂里駅:1410m)車 4分、「伊勢宮団地入口バス停(アルピコ)」まで徒歩2分(120m) |

物件概要
新築戸建て(15528
| 所在地 | 長野市差出南 2丁目 1号棟 | 交通 | JR信越本線 安茂里駅 まで 徒歩18分、(安茂里駅:1410m)車 4分、「伊勢宮団地入口バス停(アルピコ)」まで徒歩2分(120m) |
|---|---|---|---|
| 敷地面積 | 190.20㎡(57.53坪) | 建物面積 | 94.77㎡ (28.66坪) |
| 価格 | 3,180万円 | 築年月 | 2026年(令和8)3月 |
| 建ぺい率 |
60% | 容積率 |
200% |
| 土地権利 |
所有権 | 地目 |
宅地 |
| 小学校区 | 裾花小学校(590 m) | 中学校区 | 裾花中学校(160 m) |
| 私道負担 | なし | 現況 | 空家 |
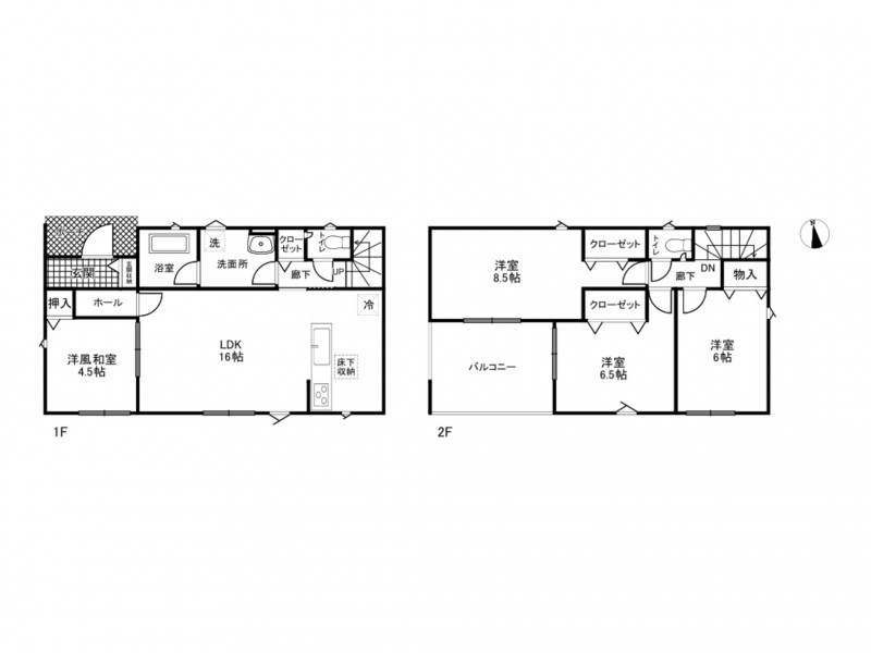
| 引渡し時期 | 相談 | 間取り | 4LDK |
| 建築構造 | 木造 | 上水道 | 公共 |
| 下水道 | 公共 | ガス | 個別 |
| 駐車場台数 | 普通2台 | 用途地域 |
準工業地域 |
| 都市計画 |
市街化区域 | ||
| 設備 | トイレ2箇所、浴室乾燥機、温水洗浄便座、システムキッチン、オートバス、カウンターキッチン、全居室収納、床下収納、モニター付インターホン | ||
| 備考 |
【建築確認番号】第R07SHC122542号 ルーフバルコニー面積9.72㎡ |
||
| 取引態様 | 仲介 | ||
をクリックすると用語集がご覧いただけます。
弊社では、売主様に配慮し、物件所在地を掲載していない物件がございます。詳細については、お気軽にお問合せください。
15528 (物件番号: 15528)
【更新年月日】2026年04月17日
【次回更新日】2026年05月17日
物件周辺の地図
大きな地図で見る
近隣物件
物件一覧へ戻る







