-


更新日:2026.05.08
長野市高田
3,180万円
35.03坪 4LDK
-


更新日:2026.04.28
長野市高田
3,690万円
36.20坪 3LDK
-


更新日:2026.05.08
長野市高田
3,280万円
38.52坪 4SLDK
中古戸建て 長野市高田 3LDK 2,198万円
この物件は714人の方が見ています
物件おすすめポイント
☆櫻ヶ岡中学校まで徒歩9分で通学に安心☆西友高田店まで徒歩8分(600m)とお買い物に便利♪
ライフインフォメーション
物件一覧へ戻る
| 所在地 | 価格 | 交通 |
|---|---|---|
| 長野市高田 | 2,198万円 | JR篠ノ井線 長野駅 まで 徒歩30分、(長野駅:2330m)車 6分、「五分一西バス停(アルピコ)」まで徒歩5分(370m) |

物件概要
中古戸建て(15548
| 所在地 | 長野市高田 | 交通 | JR篠ノ井線 長野駅 まで 徒歩30分、(長野駅:2330m)車 6分、「五分一西バス停(アルピコ)」まで徒歩5分(370m) |
|---|---|---|---|
| 敷地面積 | 197.77㎡(59.82坪) | 建物面積 | 75.35㎡ (22.79坪) |
| 価格 | 2,198万円 | 築年月 | 1978年(昭和53)3月 |
| 建ぺい率 |
60% | 容積率 |
200% |
| 土地権利 |
所有権 | 地目 |
宅地 |
| 小学校区 | 南部小学校(1420 m) | 中学校区 | 櫻ヶ岡中学校(690 m) |
| 私道負担 | 現況 | ||
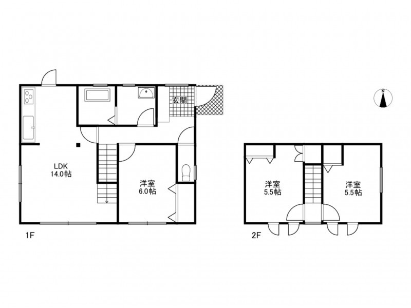
| 引渡し時期 | 即時 | 間取り | 3LDK |
| 建築構造 | 木造 瓦・亜鉛メッキ鋼板葺 | 上水道 | 公共 |
| 下水道 | 公共 | ガス | 個別 |
| 駐車場台数 | 普通2台 | 用途地域 |
第二種中高層住居専用地域 |
| 都市計画 |
市街化区域 | ||
| 設備 | 電気 | ||
| 備考 |
・本物件敷地内に中部電力所有の電柱1本及び支線1本が存しており、1本につき年間1,500円の敷地使用料が支払われています。 ・土地面積に路地状部分を含みます。 ・本物件敷地は、路地状敷地部分のみによって道路に接しているため、長野県建築基準条例に定める一定の規模の建築物を建築する場合、路地状敷地部分において一定以上の幅員が必要となります。 ・耐震基準適合証明書の発行には別途費用¥55,000(税込)が必要となります。 |
||
| 取引態様 | 仲介 | ||
をクリックすると用語集がご覧いただけます。
弊社では、売主様に配慮し、物件所在地を掲載していない物件がございます。詳細については、お気軽にお問合せください。
15548 (物件番号: 15548)
【更新年月日】2026年04月28日
【次回更新日】2026年05月28日
物件周辺の地図
大きな地図で見る
近隣物件
物件一覧へ戻る







