-


更新日:2026.04.17
松本市新村
1,530万円
47.99坪 5LDK
-


更新日:2026.04.17
松本市島内字屋敷添
2,680万円
60.50坪 4LDK
-

更新日:2026.04.13
松本市笹賀
1,850万円
62.03坪 3LDK
中古戸建て 松本市新村 3LDK 2,150万円
物件おすすめポイント
★上高地線「北新・松本大学前駅」まで徒歩7分!通勤通学に便利な好立地♪
☆家計に優しい!「太陽光発電3kW」搭載の築12年オール電化住宅!
☆駐車場は2台分のコンクリート舗装されており、
庭スペースへも駐車可能の為、最大4台駐車可能♪
☆全居室収納付き!更に「家事室」リモートワークにもオススメの「書斎」あり!
暮らしやすさを追求したこだわりの3LDKです♪
ライフインフォメーション
■LOCATION
●JA松本ハイランド新村支所まで 徒歩7分(500m)
●松本大学まで 徒歩7分(550m)
●新村郵便局まで 徒歩9分(700m)
●セブンイレブン松本新村店まで 徒歩10分(750m)
●松本市立新村保育園まで 徒歩11分(850m)
●新村ものぐさ自然公園まで 徒歩13分(1000m)
●横西産婦人科まで 車で5分(2000m)
●浅田記念クリニックまで 車で6分(2300m)
●松本ICまで 車で7分(2700m)
物件一覧へ戻る
| 所在地 | 価格 | 交通 |
|---|---|---|
| 松本市新村 | 2,150万円 | 上高地線 北新・松本大学前駅 まで 徒歩7分、(駅までの距離:500m) |

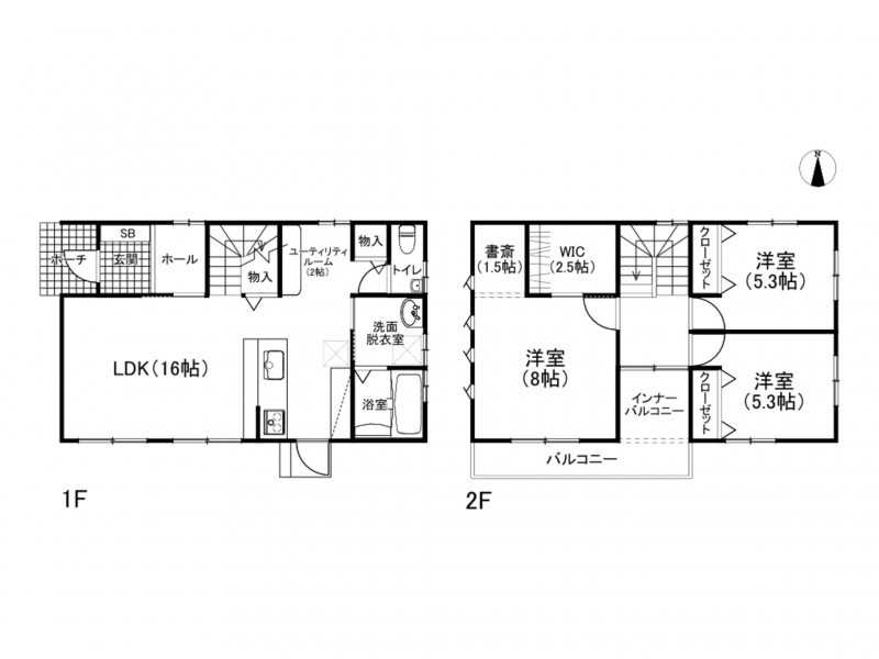
物件概要
中古戸建て(15550
| 所在地 | 松本市新村 | 交通 | 上高地線 北新・松本大学前駅 まで 徒歩7分、(駅までの距離:500m) |
|---|---|---|---|
| 敷地面積 | 公簿 242.79㎡(73.44坪) | 建物面積 | 92.73㎡ (28.05坪) |
| 価格 | 2,150万円 | 築年月 | 2013年(平成25)6月 |
| 建ぺい率 |
50% | 容積率 |
80% |
| 土地権利 |
所有権 | 地目 |
宅地 |
| 小学校区 | 芝沢小学校(1400 m) | 中学校区 | 高綱中学校(1200 m) |
| 私道負担 | あり35.11㎡ | 現況 | 居住中 |
| 引渡し時期 | 相談 | 間取り | 3LDK |
| 建築構造 | 木造 瓦ぶき | 上水道 | 公共 |
| 下水道 | 公共 | ガス | |
| 駐車場台数 | 普通2台 | 用途地域 |
無指定 |
| 都市計画 |
市街化調整区域 | ||
| 設備 | 電気、水道、風呂、トイレ、給湯、シャワー、シャンプードレッサー、バス・トイレ別、室内洗濯機置場、ベランダ、追焚機能、温水洗浄便座、IHクッキングヒーター、ウォークインクローゼット、駐車場2台、オール電化、太陽光発電システム | ||
| 備考 |
※契約不適合責任免責 ※居住中ですが日時調整の上、ご案内可能です |
||
| 取引態様 | 仲介 | ||
をクリックすると用語集がご覧いただけます。
弊社では、売主様に配慮し、物件所在地を掲載していない物件がございます。詳細については、お気軽にお問合せください。
15550 (物件番号: 15550)
【更新年月日】2026年04月17日
【次回更新日】2026年05月17日
物件周辺の地図
大きな地図で見る
近隣物件
物件一覧へ戻る







