-


更新日:2026.02.20
長野市高田
3,800万円
36.20坪 3LDK
-


更新日:2026.01.20
長野市三輪2丁目
4,880万円
43.87坪 4LDK
-


更新日:2026.01.20
長野市三輪2丁目
4,850万円
45.56坪 4LDK
中古戸建て 長野市西和田1丁目 6LDK 2,800万円
この物件は1309人の方が見ています
物件おすすめポイント
☆ツルヤ長野中央店まで徒歩6分(480m)☆古牧小学校まで徒歩10分(750m)で通学に安心
ライフインフォメーション
物件一覧へ戻る
| 所在地 | 価格 | 交通 |
|---|---|---|
| 長野市西和田1丁目 | 2,800万円 | 北しなの線 北長野駅 まで 徒歩26分、(北長野駅:2010m)車 6分、「和田公園入口バス停(長電)」まで徒歩6分(420m) |

物件概要
中古戸建て(15195
| 所在地 | 長野市西和田 1丁目 | 交通 | 北しなの線 北長野駅 まで 徒歩26分、(北長野駅:2010m)車 6分、「和田公園入口バス停(長電)」まで徒歩6分(420m) |
|---|---|---|---|
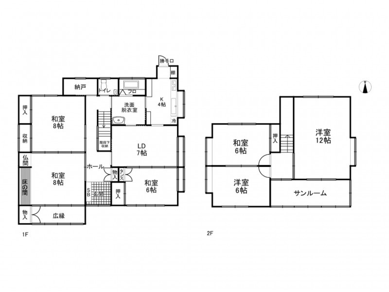
| 敷地面積 | 265.74㎡(80.38坪) | 建物面積 | 161.56㎡ (48.87坪) |
| 価格 | 2,800万円 | 築年月 | 1986年(昭和61)7月 |
| 建ぺい率 |
60% | 容積率 |
200% |
| 土地権利 |
所有権 | 地目 |
宅地 |
| 小学校区 | 古牧小学校(750 m) | 中学校区 | 三陽中学校(1690 m) |
| 私道負担 | 現況 | 空家 | |
| 引渡し時期 | 相談 | 間取り | 6LDK |
| 建築構造 | 木造 瓦葺 | 上水道 | 公共 |
| 下水道 | 公共 | ガス | 都市ガス |
| 駐車場台数 | 普通1台 | 用途地域 |
準工業地域 |
| 都市計画 |
市街化区域 | ||
| 設備 | 追焚機能、浴室乾燥機、温水洗浄便座、システムキッチン、オートバス | ||
| 備考 | 約10年前に浴室・トイレをリフォーム済み | ||
| 取引態様 | 仲介 | ||
をクリックすると用語集がご覧いただけます。
弊社では、売主様に配慮し、物件所在地を掲載していない物件がございます。詳細については、お気軽にお問合せください。
15195 (物件番号: 15195)
【更新年月日】2026年02月20日
【次回更新日】2026年03月20日
物件周辺の地図
大きな地図で見る
近隣物件
物件一覧へ戻る







