-


更新日:2026.02.20
塩尻市広丘吉田
3,380万円
50.04坪 3LDK
-


更新日:2026.02.20
塩尻市広丘吉田
3,280万円
50.22坪 4LDK
-


更新日:2026.01.18
塩尻市広丘吉田***
1,450万円
72.20坪 5DK
新築戸建て 塩尻市広丘吉田 4LDK 3,180万円
この物件は2452人の方が見ています
物件おすすめポイント
☆ファミリーマート塩尻きたインター店まで徒歩7分(530m)☆デリシア吉田原店まで車で4分(1340m)
ライフインフォメーション
物件一覧へ戻る
| 所在地 | 価格 | 交通 |
|---|---|---|
| 塩尻市広丘吉田1号棟 | 3,180万円 | JR篠ノ井線 村井駅 まで 徒歩17分、(村井駅:1300m)車 4分、「浄化センター南バス停(すてっぷくん)」まで徒歩3分(190m) |

物件概要
新築戸建て(15206
| 所在地 | 塩尻市広丘吉田 1号棟 | 交通 | JR篠ノ井線 村井駅 まで 徒歩17分、(村井駅:1300m)車 4分、「浄化センター南バス停(すてっぷくん)」まで徒歩3分(190m) |
|---|---|---|---|
| 敷地面積 | 246.61㎡(74.59坪) | 建物面積 | 103.68㎡ (31.36坪) |
| 価格 | 3,180万円 | 築年月 | 2026年(令和8)1月 完成予定 |
| 建ぺい率 |
60% | 容積率 |
200% |
| 土地権利 |
所有権 | 地目 |
宅地 |
| 小学校区 | 吉田小学校(1110 m) | 中学校区 | 丘中学校(3760 m) |
| 私道負担 | 現況 | 建築中 | |
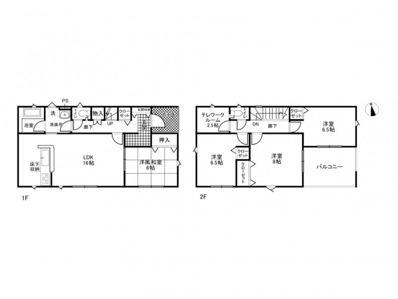
| 引渡し時期 | 予定 2026年1月 下旬 | 間取り | 4LDK |
| 建築構造 | 木造 | 上水道 | 公共 |
| 下水道 | 公共 | ガス | 個別 |
| 駐車場台数 | 普通3台 | 用途地域 |
準工業地域 |
| 都市計画 |
市街化区域 | ||
| 設備 | 温水洗浄便座、3口以上コンロ、浴室暖房 | ||
| 備考 |
【建築確認番号】第R07SHC118884号 ※敷地内に電柱及び支線が入る場合があります。 吉田八幡原地区地区計画 建物面積に別途ルーフバルコニー約9.72平米有り |
||
| 取引態様 | 仲介 | ||
をクリックすると用語集がご覧いただけます。
弊社では、売主様に配慮し、物件所在地を掲載していない物件がございます。詳細については、お気軽にお問合せください。
15206 (物件番号: 15206)
【更新年月日】2026年01月30日
【次回更新日】2026年02月28日
物件周辺の地図
大きな地図で見る
近隣物件
物件一覧へ戻る







