-


更新日:2026.04.13
長野市稲里1丁目
3,380万円
47.30坪 4LDK+テレワークルーム
-


更新日:2026.04.13
長野市稲里1丁目
3,280万円
59.30坪 4SLDK
-


更新日:2026.04.13
長野市稲里町中央1丁目
2,780万円
60.53坪 4LDK
新築戸建て 長野市稲里1丁目 4LDK 3,180万円
この物件は226人の方が見ています
物件おすすめポイント
☆三本柳小学校まで徒歩13分で通学に安心☆ツルヤ青木島店まで徒歩9分(660m)とお買い物に便利♪
ライフインフォメーション
物件一覧へ戻る
| 所在地 | 価格 | 交通 |
|---|---|---|
| 長野市稲里1丁目3号棟 | 3,180万円 | JR篠ノ井線 川中島駅 まで 徒歩27分、(川中島駅:2140m)車 6分、「丹波島仲町バス停(アルピコ)」まで徒歩4分(310m) |

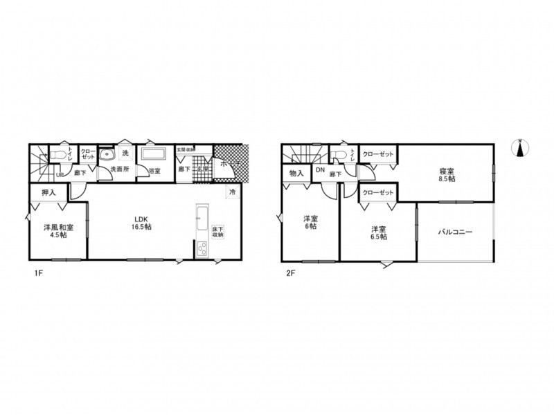
物件概要
新築戸建て(15527
| 所在地 | 長野市稲里 1丁目 3号棟 | 交通 | JR篠ノ井線 川中島駅 まで 徒歩27分、(川中島駅:2140m)車 6分、「丹波島仲町バス停(アルピコ)」まで徒歩4分(310m) |
|---|---|---|---|
| 敷地面積 | 212.97㎡(64.42坪) | 建物面積 | 94.77㎡ (28.66坪) |
| 価格 | 3,180万円 | 築年月 | 2026年(令和8)3月 |
| 建ぺい率 |
50% | 容積率 |
80% |
| 土地権利 |
所有権 | 地目 |
宅地 |
| 小学校区 | 三本柳小学校(1000 m) | 中学校区 | 更北中学校(2600 m) |
| 私道負担 | 現況 | 空家 | |
| 引渡し時期 | 即時 | 間取り | 4LDK |
| 建築構造 | 木造 | 上水道 | 公共 |
| 下水道 | 公共 | ガス | 個別 |
| 駐車場台数 | 普通3台 | 用途地域 |
第一種低層住居専用地域 |
| 都市計画 |
市街化区域 | ||
| 設備 | 温水洗浄便座、3口以上コンロ、浴室暖房 | ||
| 備考 |
【建築確認番号】第R07SHC123195号 ※土地面積に協定通路部分(路地状部分)約39.12平米を含む ※建物面積に別途ルーフバルコニー約9.72平米有り ※敷地内に電柱・支線有り |
||
| 取引態様 | 仲介 | ||
をクリックすると用語集がご覧いただけます。
弊社では、売主様に配慮し、物件所在地を掲載していない物件がございます。詳細については、お気軽にお問合せください。
15527 (物件番号: 15527)
【更新年月日】2026年04月17日
【次回更新日】2026年05月17日
物件周辺の地図
大きな地図で見る
近隣物件
物件一覧へ戻る







