-

更新日:2026.04.17
長野市桜新町
3,100万円
55.76坪 4LDK
-

更新日:2026.04.13
長野市稲田1丁目
750万円
62.85坪 6DK
-

更新日:2026.04.13
長野市西和田1丁目
2,800万円
80.38坪 6LDK
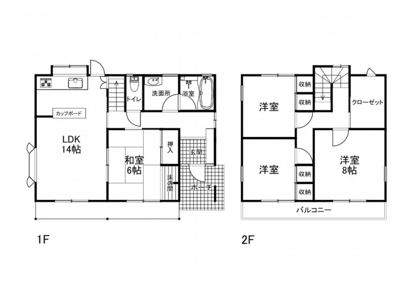
中古戸建て 長野市北堀 4LDK 1,590万円
物件おすすめポイント
【商談中】
★1階にはLDKと和室、2階には洋室が3部屋ある4LDK!
ゆとりある間取りでファミリーにもオススメです♪
☆たっぷり収納できる「ファミリークローゼット」あり!
季節ごとの衣類や家族の荷物をすっきりまとめて収納できます
☆南側道路(幅員6m)に面した、落ち着いた住環境♪
☆大切なお車を守る「カーポート付き」!普通車2台駐車可能
☆自分好みの空間に!リフォームやリノベーションのベース物件としてもおすすめです!
ライフインフォメーション
■LOCATION
●朝陽駅前簡易郵便局まで 徒歩10分(800m)
●みかさ幼稚園まで 徒歩11分(850m)
●デリシア吉田店まで 徒歩11分(850m)
●セブンイレブン長野南堀店まで 徒歩12分(900m)
●山田記念朝日病院まで 徒歩13分(1000m)
●ウエルシアIKONE City長野稲田店まで 徒歩14分(1100m)
●DCM長野運動公園店まで 徒歩15分(1200m)
●長野運動公園 総合運動場まで 徒歩18分(1400m)
物件一覧へ戻る
| 所在地 | 価格 | 交通 |
|---|---|---|
| 長野市北堀 | 1,590万円 | 長野電鉄長野線 朝陽駅 まで 徒歩10分、北しなの線 北長野駅 まで 徒歩20分、朝陽駅(750m)車2分、北長野駅(1600m)車で 4分、「南堀西バス停(ぐるりん)」まで徒歩6分(430m) |

物件概要
中古戸建て(15493
| 所在地 | 長野市北堀 | 交通 | 長野電鉄長野線 朝陽駅 まで 徒歩10分、北しなの線 北長野駅 まで 徒歩20分、朝陽駅(750m)車2分、北長野駅(1600m)車で 4分、「南堀西バス停(ぐるりん)」まで徒歩6分(430m) |
|---|---|---|---|
| 敷地面積 | 公簿 175.58㎡(53.11坪) | 建物面積 | 101.86㎡ (30.81坪) |
| 価格 | 1,590万円 | 築年月 | 1993年(平成5)12月 |
| 建ぺい率 |
60% | 容積率 |
200% |
| 土地権利 |
所有権 | 地目 |
宅地 |
| 小学校区 | 吉田小学校(1400 m) | 中学校区 | 東部中学校(1900 m) |
| 私道負担 | なし | 現況 | 空家 |
| 引渡し時期 | 相談 | 間取り | 4LDK |
| 建築構造 | 木造 スレートぶき | 上水道 | 公共 |
| 下水道 | 公共 | ガス | 都市ガス |
| 駐車場台数 | 普通2台 | 用途地域 |
第二種中高層住居専用地域 |
| 都市計画 |
市街化区域 | ||
| 設備 | 電気、水道、都市ガス、風呂、トイレ、シャワー、照明、フローリング、ベランダ、庭、駐車場2台 | ||
| 備考 | ※契約不適合責任免責 | ||
| 取引態様 | 仲介 | ||
をクリックすると用語集がご覧いただけます。
弊社では、売主様に配慮し、物件所在地を掲載していない物件がございます。詳細については、お気軽にお問合せください。
15493 (物件番号: 15493)
【更新年月日】2026年04月17日
【次回更新日】2026年05月17日
物件周辺の地図
大きな地図で見る
近隣物件
物件一覧へ戻る







