サンプロブログ
  1. HOME
  2. サンプロ不動産 実況ブログ
  3. 2020年1月

6件

皆さんこんばんは。

サンプロ不動産の秋本です。

 

1月25日、26日にめいてつショーホールにて住宅博というイベントを開催させて頂きました。

2日間で200組以上のお客様が来場して下さり大いに盛り上がりました!

ご来場してくださいました皆様、ありがとうございました!

来場できなかった皆様、次回のイベントを楽しみにお待ちください!

 

 

 

さて、本日よりサンプロ新築建売『 フリクラフト 』の4棟が値下げいたしました!

値下げに伴いなんと!!

2月1日(土)、2月2日(日)

販売会を実施いたします!!

完全予約制にてご対応させて頂きますので、下記予約ページよりチェックしてみてください!

https://frecraft.jp/

来場予約よりお待ちしております!

 

値下げ&販売会物件についてです。

8250】フリクラフト里山辺Ⅱ

8162】フリクラフト宮田

8108】フリクラフト沢村 東棟

8107】フリクラフト沢村 西棟

⇧ 価格、詳細情報についてはクリック!

 

気になる方、恥ずかしがらずに予約ポチっとしちゃってください!

そもそも私たちこの価格の物件買えるのかしら?と迷っているそこの奥さん!

私たちにお任せください!

1からマイホーム計画進めましょう!!

ご連絡、ご来場お待ちしております!!

 

---------------

サンプロ不動産株式会社

〒399-0036 長野県松本市村井町南4-1-4

TEL/0263-50-8150(フリーダイヤル:0120-503-650)
※電話受付 9:00~18:30

FAX/0263-88-8172

営業時間(本社)9:00~18:30
(ショールーム)10:30~19:00
火・水曜定休

皆様こんにちは。そしてお久しぶりです!
サポートスタッフの原です。

最近は一気に冷え込んできましたね。
これまでが暖かった分、より一層寒さを肌に感じてしまいます。
インフルエンザも流行っているとのことで、皆様お身体にはお気を付けくださいませ。

さて、本日の物件レポートは安曇野市豊科にある5SLDKの中古戸建物件になります。

☆1.5km圏内にはスーパーや病院あり
☆駐車場にはカーポート付+車3台駐車可能
☆こだわりのガラスブロックと壁紙がオシャレな内装

外観はコチラ
窓の形が特徴的でおしゃれですよね♪

 

また、芝生のお庭にはウッドデッキもございます!
ご家族でBBQや昼間の温かい日差しの下での読書、夜にはお酒を片手にゆったりと…
などなど様々な楽しみ方ができると思いますよ(^^)

 

こだわりのガラスブロックや壁紙は思わず目を引いてしまうほどです✨

 

キッチンは広々としていて嬉しい食洗器付き!

 

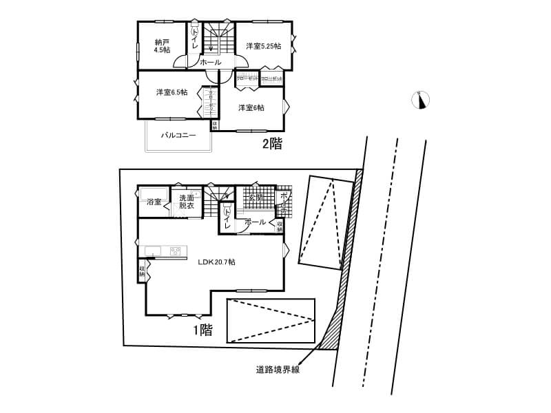
そして気になる間取りは…

価格:****万円
土地面積:公簿264.06㎡(79.87坪) 建物面積:122.96㎡(37.19坪)  間取り:5SLDK
築年月:2012年(平成24)7月  建ぺい率:60%   容積率:200%
建築構造:木造 かわら葺   駐車場台数:普通3台   設備:電気、水道、プロパンガス
用途地域:第一種低層住居専用地域   都市計画:市街化区域
小学校区:豊科南小学校(1600 m)  中学校区:豊科南中学校(2000 m)
備考:※現在居住中、契約から引き渡しまで2か月

詳しい場所については、こちらのブログに載せることが出来ません💦
ぜひ、お問合せを!!村井町南のショールームにてお待ちをしております。

物件HP:https://www.sunpro-estate.jp/estate/detail?no=8732

時間とお金を無駄にしないためにも先ずはご相談ください⭐
ご連絡は下の電話、FAX、Emailからご相談ください。押し売りはしませんがおすすめはします✌

※この情報は2020年1月18日現在の情報です。

*******お問い合わせはこちらから*******
電話番号 0263-50-8150   10:00~19:00 火曜日・水曜日定休
FAX    0263-88-8172 24時間受付中
e-mail   contact@sunpro36.co.jp 24時間受付中
********************************

「このまま賃貸住宅に住み続けるか、それとも持ち家を購入するか…」と、家を購入するタイミングで悩んでいる方も多いでしょう。なかには、「このまま一生、賃貸に住み続けよう」と考える人もいらっしゃるかもしれません。

 

賃貸住宅と持ち家、どちらに住み続けるのがメリットは大きいのでしょうか?

それぞれの特徴やコストで比較しました。

 

持ち家と賃貸のメリット比較

 

持ち家にはどんなメリットがある?

持ち家のメリットは、自分の家を持てる喜びが一番大きいでしょう。

知人や仕事仲間に「家を買った」と自慢できるだけでなく、社会的な信用にもつながることもあります。

 

注文住宅を建てる方であれば、自分の趣味やライフスタイルにあわせて家を建てられますから、好きなものに囲まれながら過ごせるといった満足感も得られます。

 

賃貸と比べた場合、模様替えやリフォームなど自由にできる点も持ち家の魅力。

壁紙の張り替え、設備更新、間取りの変更なども自由にできますし、リフォームや二世帯住宅を建てるといったことも可能です。

 

また、住宅ローンを払い終えれば、その後の経済的負担も軽くなります。

年金暮らしになっても、住むところに困らず老後が安心なのも持ち家で暮らすメリットです。

賃貸にはどんなメリットがある?

賃貸住宅の魅力は、土地に縛られず引越しが容易な点がメリットの一つです。

家族が増えたり、仕事やライフスタイルが変わったりしても、住みたい場所、必要な広さや設備の住まいを選べます。

また、近隣住民とのトラブルや、隣に高い建物ができて日当りが悪くなるといった周辺環境の変化にも、引越しすれば問題は解決します。

 

生活するうえでのコスト面でも、有利な点があります。

たとえば、エアコンや給湯器などの設備が故障した場合、修理代は基本的にオーナーの負担。居住者が支払うことはありません。

大きな地震や台風などで建物が損壊したとしても、修繕費用はオーナー負担です。

 

毎月の家賃がかかりますが、固定資産税などの支払いもありません。火災保険も家財のみにしかかけられないので、税制面でも安く抑えられます。

 

持ち家と賃貸のデメリット比較

 

持ち家にはどんなデメリットがある?

持ち家のデメリットは、初期投資費用が高いこと。

土地から探すとなれば数千万円台の費用がかかります。

住宅ローンを利用するとはいえ、建築費の2割程度の頭金は用意しておきたいですから、あらかじめ数百万円は用意する必要があります。

 

仕事や環境の変化で、簡単に引越せないというのも持ち家のデメリット。

売却という手もありますが、すぐに売れるとは限りませんし、売却額が住宅ローンの残債に満たなければ売れないというデメリットもあります。

 

このほか、設備の修理代やリフォームは自己負担ですし、火災保険や固定資産税など毎年払い続ける必要があります。

 

賃貸にはどんなデメリットがある?

賃貸住宅のデメリットは、模様替えやリフォームができないこと。

退去時には原状回復が求められますから、損傷させた部分の修理代が別途かかることもあります。

 

また、住宅ローンは払い終える日が来ますが、家賃は半永久に続きます。

築年数が古くなり家賃の値下げがあっても、0円になることはありません。収入の少ない老後になると、借りられる物件が限られるという一面もあります。

 

そして何より、いくら家賃を支払っても自分の資産には一切ならないという点も、賃貸住宅のデメリットでしょう。

 

持ち家と賃貸の生涯コスト比較

持ち家を購入すれば家賃を払い続ける必要がなくなります。

しかし、住宅ローンを利用して購入すれば、毎月のローン返済が始まります。

 

「このまま賃貸に住み続けたほうが、トータルコストは安くなるのでは?」とお考えの方もいらっしゃるかもしれません。

 

実際のところ、どちらがコストを抑えられるのでしょうか。30歳の方が80歳になるまでの50年間で、持ち家と賃貸住宅にかかるコストをシミュレーションしてみましょう。

 

持ち家を購入するといくらかかる?

3,000万円の家を住宅ローンで購入し、50年間住み続けるケースでシミュレーションします。

 

一般的に住宅ローンを利用する際には、建物価格の2割程度の「頭金」が必要です。

ここでは、頭金500万円を用意し、残り2,500万円を借り入れたとしましょう。

 

住宅ローンの返済期間は35年、固定金利1.5%とした場合、トータルの返済額は3,214万円(月々の返済額は7万6,546円)です。

 

なお、家を購入する際には登記費用や引越し代など諸費用がかかります。

諸費用は建物の価格の5%程度です。

 

税制面では、入居した年に不動産取得税が、また建物を所有し続ける限り固定資産税がかかります。

 

また、リフォームや設備更新の費用も考慮する必要があります。

ここでは、住み始めてから20年後、子どもが大学を卒業するタイミングで200万円のリフォーム、また住宅ローンの支払いを終えたタイミングでバリアフリーに対応するため500万円のリフォームを実施したと仮定します。

 

このほか、50年間でエアコンや給湯器の買い替え、外壁塗装など住宅設備関連でトータル300万円かけたとしました。

 

以上の条件でかかる、持ち家のトータルコストは、以下の通りです。

 

・頭金:500万円

・住宅ローン返済額:3,214万円

・諸費用:150万円

・不動産取得税:40万円

・固定資産税:500万円(年10万円)

・火災保険:50万円(10年で10万円)

・修繕・リフォーム:1,000万円

 

持ち家のトータル費用:5,454万円

 

賃貸だといくらかかる?

30歳の方が、賃貸住宅で3回引越しするケースで考えてみましょう。

 

引越しは30歳で、子どもが3歳のとき。次の引越しは子どもが中学に入学する10年後。

そして、大学を卒業するさらに10年後に夫婦二人暮らしをするために3回目の引越しをするケースでシミュレーションします。

 

一ヵ月の家賃は、1軒目の賃貸住宅が10万円、2軒目が12万円、3軒目は10万円と仮定。

入居時にかかる敷金・礼金・仲介手数料は家賃の3カ月分、2年に一度の更新料は家賃1ヵ月分とします。

 

この条件で50年間賃貸に住み続けるトータルコストは以下の通りです。

 

・家賃:6,240万円

・敷金・礼金等:96万円

・更新料:328万円

 

賃貸のトータル費用:6,664万円

 

このほか、車を持っている方であれば駐車場代が別途かかりますし、引越し費用などもかかります。

 

こうして比べると、賃貸の方が持ち家より1,000万円以上も高くなることがわかります。

逆に、上記の賃貸条件を計画されている方であれば、4,000万円の持ち家を購入するのと大差はないといえるわけです。

 

そもそも家賃には、建物の工事費用や諸経費などに加え、オーナーの利益も含まれるわけですから、持ち家を購入するより割高なのです。

 

 

持ち家は売れば現金を手に入れられる

資産価値という点で考えると、居住者に価値があるのは持ち家の方です。

賃貸住宅はいくら家賃を払っても、自分のものにはなりません。

 

何らかの事情でまとまったお金が必要になったとき、持ち家であれば売却や賃貸、民泊などの手段で現金を手に入れることも可能です。

 

もちろん、資産価値は築年数が古くなると下がっていきます。

売却したくてもすぐに売れないことだってあるでしょう。

それでも、自分の所有物である限り自由に運用できることも、持ち家ならではの強みといえます。

 

まとめ

持ち家と賃貸住宅のトータルコストを比較しましたが、住まいに求める機能やこの先何年住み続けるかなど、さまざまな要因で費用は大きく変わります。

家賃の安い物件に長く住み続ければ、賃貸住宅の方が安く収まるでしょう。

 

ただ、住まいを一生自分のものにできるのは持ち家の方ですし、老後の安心感を比べても持ち家に軍配が上がります。

コストだけでなく、ライフスタイルや家に対する考え方なども含め、幸せな生活が送れる方を選びましょう。

 

カテゴリー : コラムコメントをどうぞ

こんばんは、宮下です。

3連休はいかがでしたでしょうか?

昨日まで店舗でイベントを開催しており、たくさんのご来場ありがとうございました!

ご希望に沿えるように精一杯物件探し等お手伝いさせていただきます!

 

さて、本日は松本駅徒歩12分の場所で現在着工中の建売住宅のご紹介になります。

東南角地で駐車スペースも2台取れており、陽当りも十分確保できて、価格も魅力的

な物件です♪

 

☆松本駅徒歩12分!
☆相澤病院徒歩7分! ☆ホテルブエナビスタ 徒歩7分!

 

 

 

(↑※2019年12月24日撮影 現在基礎工事中です。)
南側の道路は広めで、車の出し入れする際に不安になることもありません!

 

 

 

※完成は2020年4月予定、外観は上記のイメージパースをご覧ください。

所在:松本市庄内1丁目

価格:***万円(税込)
土地面積:124.67㎡(37.71坪)
建物面積:延べ99.47㎡(30.08坪)
間取り:4LDK

 

松本駅前の新築の賃貸相場からしてもかなりお得です! 駐車場も2台付いてますよ!

間取りも広々LDKに2Fにもトイレが付いていてキッチンは対面式です。

狭い敷地でもプライバシーに配慮しながら、快適な暮らしとなるような間取りです!

この場所なら車1台で暮らすこともできますね!!

 

使用する住宅設備等の資料もございますので、気になる方はまずはお問合せ下さいませ。

ミヤシタ ヨシヒロ

———————————————————————-

サンプロ不動産株式会社

〒399-0036 長野県松本市村井町南4-1-4

TEL/0263-50-8150(フリーダイヤル:0120-503-650)
※電話受付 9:00~18:30

FAX/0263-88-8172

営業時間(本社)9:00~18:30
(ショールーム)10:30~19:00
火・水曜定休

2020年01月07日(火)

2020!

一年の無病息災を願う七草がゆの日、本日1月7日の更新は宮嶋です!

本年もどうぞよろしくお願い致します🐭✨

 

久保田につづきお正月トークになってしまいますが

皆さんどんなお正月でしたでしょうか?

わたしは例年、大晦日と元旦は家から出ないことがモットーなのですが

今年はなんと元旦から初詣にいきました。

しかも前回ブログの久保田とがっつりかぶっており、四柱神社と松本城🤣

遭遇しなかったですね。。わたしが行ったのは昼間だったので。。

普段お正月は外に出ない為、人の多さに驚きました。。

初詣ってこんなに並ぶんですね😭

たいやき食べながら待ち時間を過ごしました。

寒いですが晴天でよかったです!

こんなにいい天気なら元旦に外出するのも悪くないですね😎

松本城しかり信州は素敵な場所がたくさんあると思うのですが

長年住んでいてもなかなか行ったことがない所ばかりです。

2020年の目標は、『長野県の散策』です!

おすすめがあったら教えてくださいね😌

 

 

 

みなさんにとって2020年が素敵な一年になりますように🌟

 

サンプロ不動産 宮嶋

*******お問い合わせはこちらから*******
電話番号 0263-50-8150   10:00~19:00 火曜日・水曜日定休
FAX    0263-88-8172 24時間受付中
e-mail   project@po.mcci.or.jp 24時間受付中
*********************************

あけましておめでとうございます!!

旧年中はひとかたならぬご厚誼を賜りまことにありがとうございます。

本年も何卒よろしくお願い申し上げます。

あらためまして、こんにちは!!

2020年ブログ初めは、久保田が担当です😎

年末年始はいかがお過ごしでしたでしょうか?

9連休、10連休の方もいれば、お仕事の方もいらっしゃったかと思います。

私は、例年通り【紅白、ガキ使い、箱根駅伝】を見ながら飲んで食べての生活でした(笑)

初詣は、四柱神社と松本城へ行ってきました!!

昼間は混雑しているので毎年元旦の夜にひっそりとお参りをしています(笑)

今年も多くの【ご縁】がありますようにと祈願してきました!!

 

さて、年末年始ご家族で集まる機会も多かったかと思います。

2020年は、【マイホームを手に入れたい!!】そんな話題がでた方もいらっしゃったのではないでしょうか😆

そんな【マイホームが欲しい】という皆様に、イベントのお知らせです!!

 新春!土地&新築中古 不動産フェア】を開催します!!!👏👏👏👏👏👏👏

開催日 2020年1月11日(土)、1月12日(日)

開催時間 10:00~17:00

土地探しの方、戸建て探しの方は必見です!!

そして、新春企画として

【2020新春 買いたい!売りたい!2大キャンペーン】を開催します♪

キャンペーン開催①<買いたい人>
11棟限定!! 新築戸建のご契約のお客様全員に100万円相当をプレゼント♪

2/29までに、ご成約の方に寒冷地専用エアコン1台・全居室カーテン・キッチン収納ハイフロアキャビネットをプレゼント!
さらに、1月末までご来場された方に限り、サプライズ成約特典をご用意しております。

キャンペーン開催② <売りたい人>
お客様の不動産、その場で査定額をお出しします!1日3組限定!無料査定大相談会!

完全無料、当日金額提示、1日3組限定です。
査定や仲介会社選びで大きな判断ミスをしないための重要ポイントをアドバイスいたします!
(強化対象エリア:松本市・塩尻市・安曇野市・山形村・朝日村・岡谷市・大町市・池田町・諏訪市)
さらに、無料査定相談会後、当社にて売買契約締結のお客様に後日QUOカード3,000円贈呈いたします。

 

ほかにも、有名リゾートテーマパークペアチケットが当たる【大抽選会】や

【お楽しみ袋プレゼント】といった企画も用意しています!!

ご家族皆様そろってご来場いただければと思います。

 

両日とも混雑が予想されます。

WEB予約をしていただけるとご案内がスムーズにできます。

ご予約はこちらから⇒

https://www.sunpro-estate.jp/event/detail?id=3970

 

皆様のご来場をスタッフ一同、心よりお待ちしております!!

それではまた!!

*******お問い合わせはこちらから*******
電話番号 0263-50-8150   10:00~19:00 火曜日・水曜日定休
FAX    0263-88-8172 24時間受付中
e-mail   project@po.mcci.or.jp 24時間受付中
*********************************

 

6件

BLOG TOP
2020年1月
 12345
6789101112
13141516171819
20212223242526
2728293031  

アーカイブ